Lumineux T3 de 74m² traversant N/S sans vis-à-vis et avec vue dégagée idéalement situé dans le secteur Gratte-Ciel/Tolstoï, rue Richelieu.
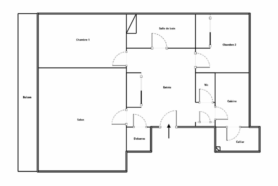
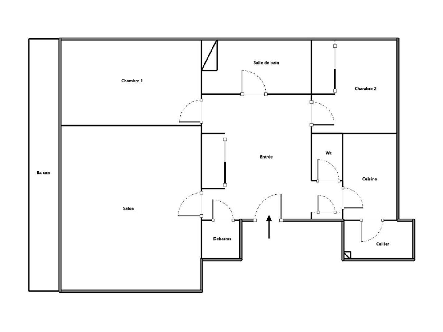
En dernier étage d’un immeuble en intérieur de copropriété, Appartement T3 /T4 de 74m² en bon état composé :
– d’une entrée avec rangements desservant toutes les autres pièces du logement.
– d’un séjour double climatisé de 26m² exposé Sud.
– d’une cuisine indépendante de 8m² exposée Nord donnant accès à un cellier de 2,60m².
– de deux chambres de 11m² .
– d’un balcon de 10m² ensoleillé et exposé au Sud accessible depuis le séjour et l’une des chambres.
– d’une salle de bains et de WC séparés.
Le bien est vendu avec une cave en sous-sol et il est possible d’acquérir pour 10.000 euros supplémentaires une place de parking privative dans la copropriété.
Cet appartement T3 est idéal pour une résidence principale de par son emplacement à proximité immédiate des transports, des commerces et des écoles :
– Mairie des Gratte-Ciel, TNP et avenue Henri Barbusse à 700 mètres.
– Marché des Gratte-Ciel à 800 mètres.
– Bus TB11/C23/69 (arrêt Verlaine) et Tramway T6 (arrêt Verlaine-Tolstoï) à 250 mètres.
– Groupe scolaire Jaurès (rue Lafontaine) à 150m et collège Louis Jouvet à 800 mètres.
Bien soumis au régime de la copropriété dans un immeuble composé de 151 lots principaux qui ne fait pas l’objet d’une procédure en cours.
Quote-part mensuelle de charges : 260 euros incluant les charges de copropriété, de chauffage, d’eau chaude et d’eau froide.
Montant estimé des dépenses annuelles d’énergie pour un usage standard : entre 2140 euros et 2250 euros par an. Prix moyens des énergies indexés sur les années 2021 à 2023 (abonnements compris).
Les informations sur les risques auxquels ce bien est exposé sont disponibles sur le site Géorisques (C. envir., art. R. 125-25, I).
Honoraires à la charge du vendeur.
Pour plus d’informations, prenez contact avec notre consultante Maéva Lhomme, agent commercial immatriculée au RSAC de Lyon sous le numéro 939 314 399, au 07/56/47/16/03.
Copropriété de 151 lots.
Charges annuelles : 3054 euros.

















