06 33 63 57 18

Pour nous joindre

Gratte-Ciel – T4 /T5 de 85m² avec balcon, parking et cave

69100 VILLEURBANNE

réf: 1374

  • 279.000 €

A propos de cette annonce :

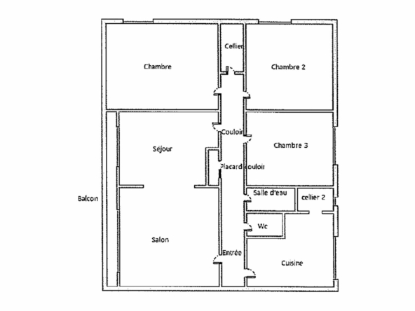
Idéalement situé en plein coeur des Gratte-Ciel, lumineux T4/T5 triple exposition S/O/N en étage élevé avec vue dégagée et aucun vis-à-vis.
Appartement de 84,48m² bien agencé sans aucune perte d’espace et modulable avec :
– Séjour double donnant accès à un balcon de 6m² exposée Sud avec vue sur Villeurbanne et Lyon.
– Cuisine indépendante donnant accès à un cellier.
– 3 chambres de 9 à 13m² (possibilité de créer une 4ème chambre).
– Salle d’eau et WC séparés.
Une cave en sous-sol et un parking collectif fermé dans la résidence complète également le bien.

Cet appartement est idéal pour une résidence principale ou un investissement locatif en colocation 4 chambres de par son aménagement et son emplacement de qualité au pied de toutes les commodités :
– Métro A, Tram T6 (accès direct campus de la Doua et faculté de médecine) et Bus.
– Commerces du quotidien et marché 3/semaine.
– Avenue Henri Barbusse et ses boutiques, cafés et bars.
– Crèches, écoles, collège, lycée et IUT.

Bien soumis au régime de la copropriété (276 lots principaux). Pas de procédure en cours.
Charges mensuelles : 206 euros incluant les charges de copropriété, d’allée, de bâtiment, de conciergerie, d’ascenseur, de chauffage.
Montant estimé des dépenses annuelles d’énergie pour un usage standard : entre 1390 euros et 1940 euros par an. Prix moyens des énergies indexés sur l’année 2021 (abonnements compris).
Les informations sur les risques auxquels ce bien est exposé sont disponibles sur le site Géorisques (C. envir., art. R. 125-25, I).
Honoraires à la charge du vendeur.

Pour plus d’informations, photos et plans, prenez contact avec notre consultante Alice, agent commercial immatriculée au RSAC de Lyon sous le numéro 999 654 387, au 06/71/98/39/80.
Copropriété de 276 lots.

Charges annuelles : 2472 euros.

En détail :

  • Prix 279.000 €
  • Superficie 85 m²
  • Chambres 3
  • Type de bien APPARTEMENT
  • Numéro Mandat 1374
  • Surface habitable 85
  • Nb pièces 4
  • WC 1
  • Ville 69100 VILLEURBANNE
  • Code postal 69100

Intéressé par cette annonce :

CABINET PETRUCCI CONVERT

06 33 63 57 18

Les informations sur les risques auxquels ce bien est exposé sont disponibles sur le site Géorisques : www.georisques.gouv.fr

Consommation énergétiques : 217 kwh/m² an

Emission de gaz à effet de serre : 23 kg C02/m² an

Estimation des coûts annuels d'énergie du logement

Entre 1390 €

et

1940€ par an

Les coûts estimés en fonction des caractéristiques de votre logement.

Prix moyen des énergies indexés sur l'année: 2021

Les annonces

Récemment consultées

Estimer avec Cabinet PETRUCCI CONVERT:

c'est simple et 100% Gratuit !

Les informations recueillies sur ce formulaire sont enregistrées dans un fichier informatisé uniquement à destination de l’agence et ou du prestataire informatique La Solution Immo .Elles seront conservées jusqu’à demande de suppression, suppression que vous pouvez directement demander depuis notre formulaire prevu a cet effet . En cliquant sur ce lien . Il est possible aussi de vous inscrire sur la liste d’opposition au démarchage téléphonique « Bloctel » en allant sur ce lien : https://www.bloctel.gouv.fr.

Compare listings

Comparer
transaction cpc
  • transaction cpc