Avec vue sur les Quais de Saône, lumineux T4 de 126m² où le charme de l’ancien rencontre un confort contemporain raffiné.
Dès l’entrée, le ton est donné : beaux volumes, lumière abondante et une hauteur sous plafond remarquable de 3,30m qui sublime chaque espace. Situé au sein d’une résidence sécurisée, intimiste avec espace vert, ce bien rare offre un cadre de vie aussi paisible que privilégié.
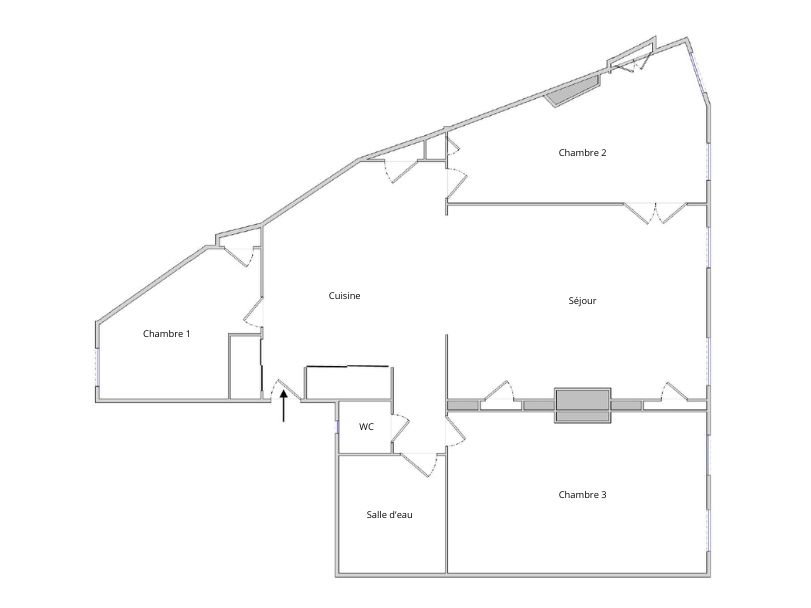
Cet appartement coup de coeur, bien agencé et sans perte d’espace, offre de très belles prestations pour un confort de vie optimal avec :
– une pièce de vie de plus de 53m² avec cheminée en marbre, parquet en chevron et moulures d’époque qui créent une atmosphère chaleureuse et sophistiquée.
– une spacieuse cuisine équipée et moderne qui s’ouvre sur l’espace de vie avec son îlot central idéal pour des moments de convivialité.
– trois chambres de 13m², 22m² et 25m² avec cheminée, parquet et rangements.
– une salle de bains familiale de 7m² avec douche, baignoire, double vasque et espace buanderie.
Emplacement de qualité à proximité immédiate de toutes les commodités :
– A proximité des transports en communs : Métro D à 250 mètres et Bus C6/2/5/19/45/90.
– Commerces du quotidien (boulangerie, supermarché, pharmacie, etc.).
– Ecoles maternelles et élémentaires, collège, lycée.
Bien soumis au régime de la copropriété (15 lots principaux) – Pas de procédure en cours – Charges mensuelles de 180 euros incluant les charges de copropriété, d’ascenseur et d’entretien.
Montant estimé des dépenses annuelles d’énergie pour un usage standard : entre 1700 euros et 23600 euros par an. Prix moyens des énergies indexés sur l’année 2021 (abonnements compris).
Honoraires d’agence à la charge de l’acquéreur.
« Les informations sur les risques auxquels ce bien est exposé sont disponibles sur le site Géorisques: www.georisques.gouv.fr » (C. envir., art. R. 125-25, I).
Pour plus d’informations, photos et plans, prenez contact avec notre consultante Alice Goedart, agent commercial, immatriculée au RSAC de Lyon sous le numéro 999 654 387, au 06/71/98/39/80.
Copropriété de 15 lots.
Charges annuelles : 2160 euros.






















