Idéalement situé en plein coeur des Gratte-Ciel, lumineux T4/T5 triple exposition S/O/N en étage élevé avec vue dégagée et aucun vis-à-vis.
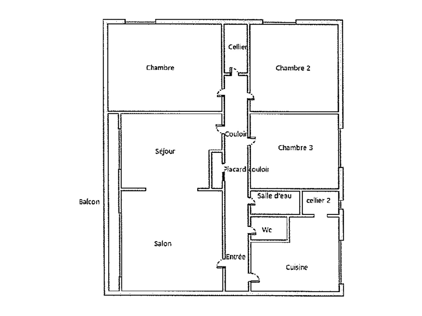
Appartement de 84,48m² bien agencé sans aucune perte d’espace et modulable avec :
– Séjour double donnant accès à un balcon de 6m² exposée Sud avec vue sur Villeurbanne et Lyon.
– Cuisine indépendante donnant accès à un cellier.
– 3 chambres de 9 à 13m² (possibilité de créer une 4ème chambre).
– Salle d’eau et WC séparés.
Une cave en sous-sol et un parking collectif fermé dans la résidence complète également le bien.
Cet appartement est idéal pour une résidence principale ou un investissement locatif en colocation 4 chambres de part son aménagement et son emplacement de qualité au pied de toutes les commodités :
– Métro A, Tram T6 (accès direct campus de la Doua et faculté de médecine) et Bus.
– Commerces du quotidien et marché 3/semaine.
– Avenue Henri Barbusse et ses boutiques, cafés et bars.
– Crèches, écoles, collège, lycée et IUT.
Bien soumis au régime de la copropriété (276 lots principaux). Pas de procédure en cours.
Charges mensuelles : 240 euros incluant les charges de copropriété, d’allée, de bâtiment, de chauffage et d’eau froide.
Montant estimé des dépenses annuelles d’énergie pour un usage standard : entre 1230 euros et 1730 euros par an. Prix moyens des énergies indexés sur l’année 2021 (abonnements compris).
Les informations sur les risques auxquels ce bien est exposé sont disponibles sur le site Géorisques (C. envir., art. R. 125-25, I).
Honoraires à la charge du vendeur.
Pour plus d’informations, photos et plans, prenez contact avec notre consultante Alyssa Niculescu, agent commercial, immatriculée au RSAC de Lyon sous le numéro 794 964 957.
Copropriété de 276 lots (Pas de procédure en cours).
Charges annuelles : 2880 euros.





























