Comme un air de maison pour ce 88m² en rez-de-jardin dans un ancien corps de ferme réhabilité avec extérieur privatif de 42m².
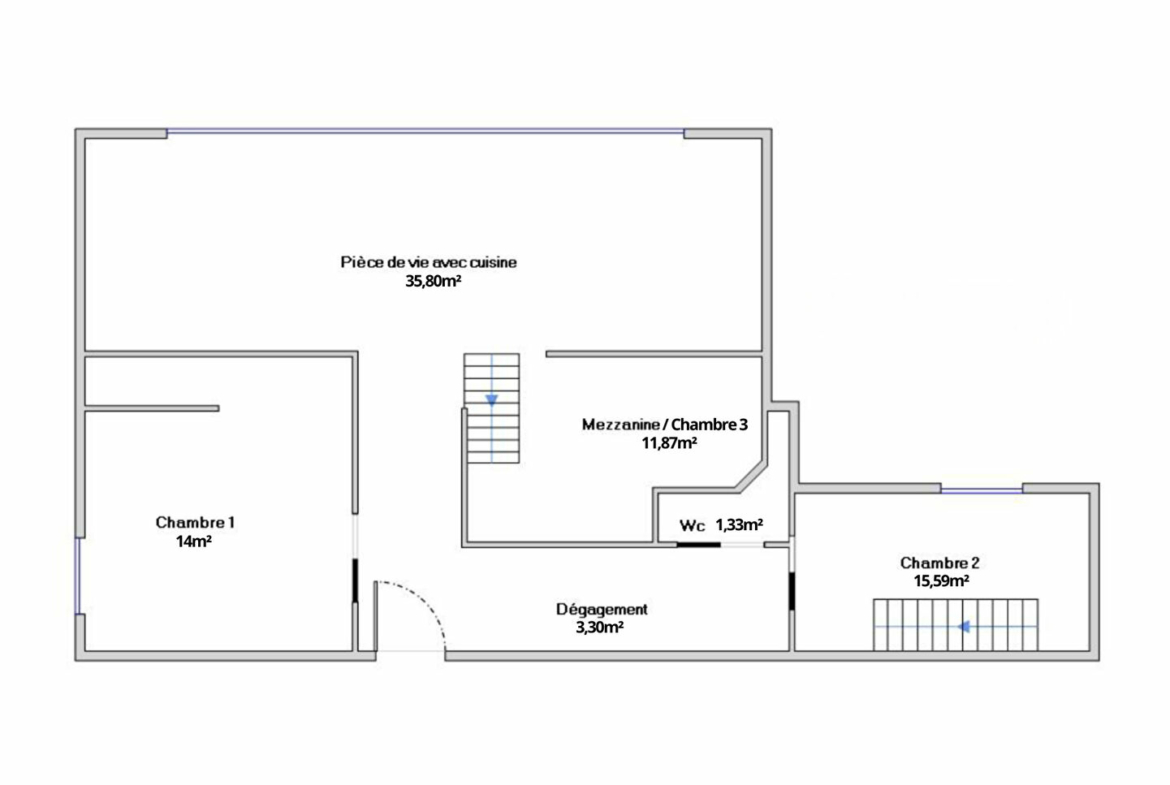
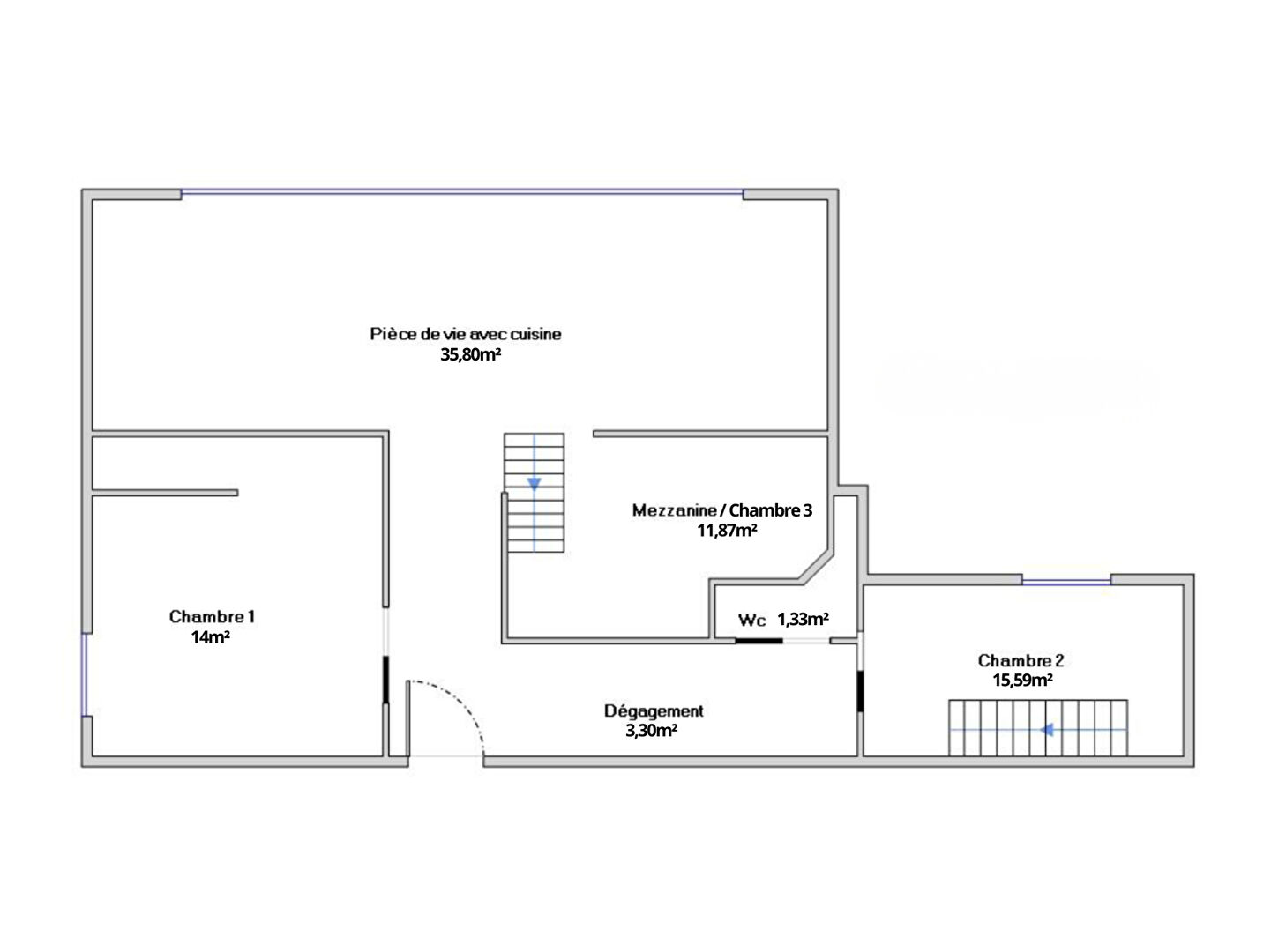
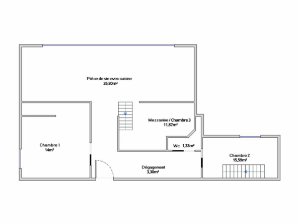
Idéal pour les amoureux des beaux volumes, de l’atypique et du charme, cet appartement T3/T4 de 88m² carrez (82m² carrez) en excellent état dispose :
– d’une lumineuse pièce de vie de 36m² ouverte sur la terrasse, puis le jardin.
– d’une cuisine entièrement équipée avec un ilot central créant la liaison avec le séjour.
– d’une mezzanine de 12m² accessible depuis le salon pouvant faire office d’atelier, de bureau ou de chambre.
– d’une première chambre de 14m² avec rangements tout hauteur et sa salle d’eau privative.
– d’une seconde chambre de 15m² incluant une mezzanine de 6m² idéale pour un couchage supplémentaire ou une salle de jeu.
– d’une salle de bain au charme d’antan avec ses carreaux et sa baignoire sur pieds et de WC séparés.
– de deux places de stationnement privatives.
Ce bien unique allie à merveille le charme et les volumes de l’ancien de corps de ferme et le confort que l’on attend d’un appartement rénové : double vitrage, volets électriques et climatisation réversible dans chaque pièce.
Cet appartement est idéal pour un couple, comme pour une famille de part son emplacement à proximité des commodités :
– centre-ville d’Ecully avec ses commerçants et ses 3 marchés de producteurs par semaine à moins de 15 minutes à pieds.
– école, collège et lycée à moins de 10 minutes à pieds.
– Bus 19 à 100m et Bus 3 et 5 à 600m pour un accès direct à Gorge de Loup.
– de nombreuses lignes scolaires dans les 400m : JD151 (Campus Lyon Ouest), JD172 (Institution St Joseph), JD818 (Collège aux Lazaristes Limonest) et JD840 (Collège Sacré Coeur).
Bien soumis au régime de la copropriété (7 lots principaux). Pas de procédure en cours.
Charges mensuelles : 100 euros.
Montant estimé des dépenses annuelles d’énergie pour un usage standard : entre 970 euros et 1730 euros par an. Prix moyens des énergies indexés sur les années 2021 à 2023 (abonnements compris).
Les informations sur les risques auxquels ce bien est exposé sont disponibles sur le site Géorisques (C. envir., art. R. 125-25, I).
Honoraires à la charge du vendeur.
Pour plus d’informations prenez contact avec notre consultante Alyssa Niculescu, agent commercial, immatriculée au RSAC de Lyon sous le numéro 794 964 957.
Copropriété de 7 lots.
Charges annuelles : 1250 euros.























