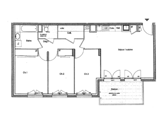
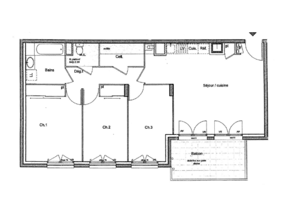
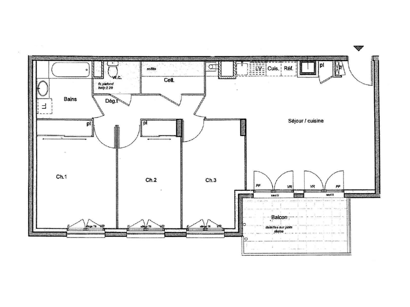
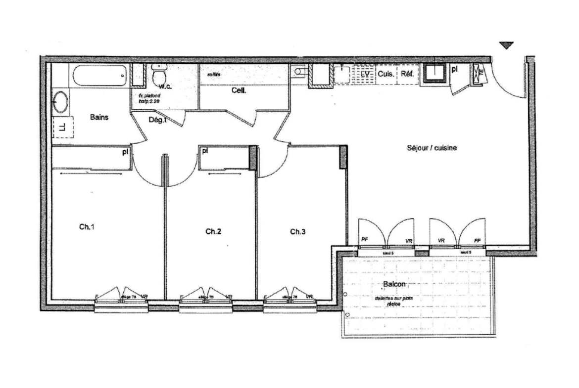
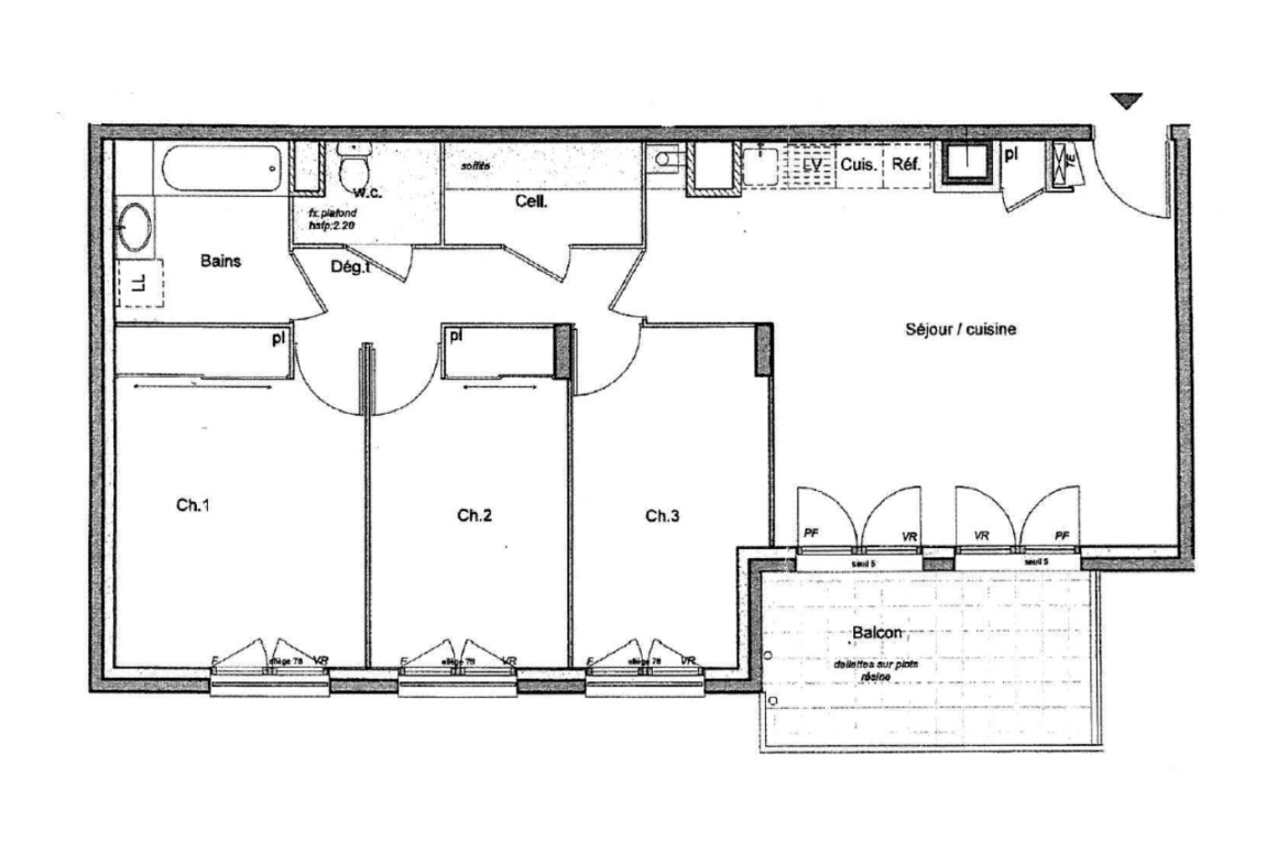
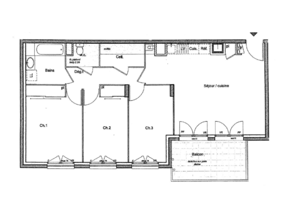
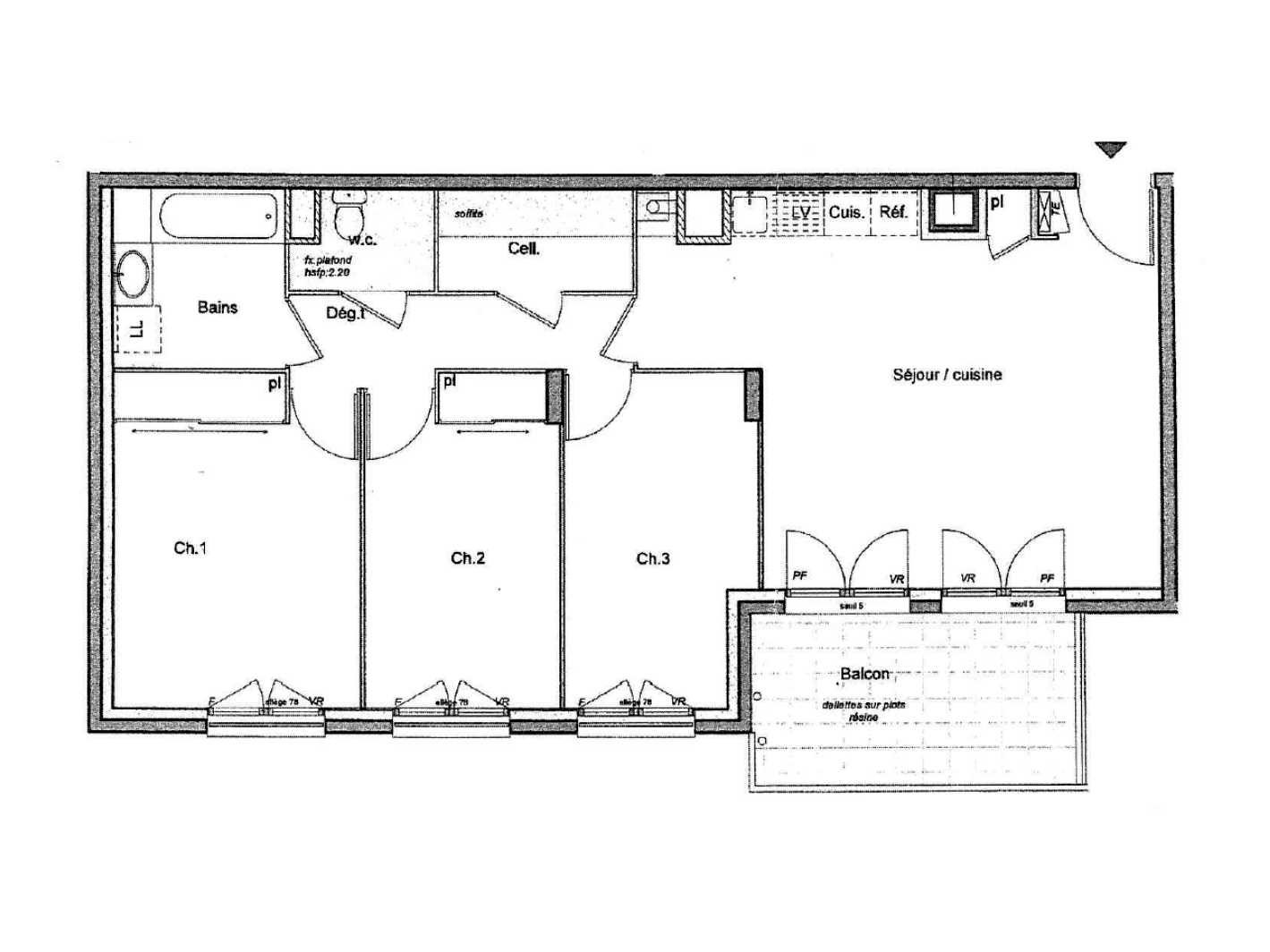
Dans copropriété de 2016, lumineux T4 en excellent état avec terrasse et garage en option.
Cet appartement parfaitement agencé sans aucune perte d’espace et entièrement climatisé dispose :
– d’une pièce de vie de 29m² avec séjour double et cuisine équipée.
– d’une terrasse plein ciel de 9m² ensoleillée et exposée à l’ouest.
– de 3 chambres de 10 à 12m² avec placards.
– d’une salle de bains avec douche, baignoire et double vasque (WC séparés).
– d’une buanderie de 3m² avec rangements intégrés.
Ce T4 de 77m² est idéal pour une résidence principale ou un investissement locatif :
– DPE classé B en valeur primaire et A en valeur finale, chauffage individuel au gaz et climatisation réversible dans chaque pièce.
– Double vitrage et store banne électrique sur la terrasse.
– Aucuns travaux de copropriété à prévoir.
– Possibilité de l’acheter entièrement meublé.
Cet appartement totalement orienté au calme à l’intérieur de la copropriété est situé dans une rue pavillonnaire à proximité immédiate :
– des transports en commun : Bus 37 pour un accès direct à Charpennes – Bus 7 pour un accès direct à Laurent Bonnevay – Futur Tramway T9 (arrêt Saint Jean) pour un accès direct à Charpennes et les Tramway T1/T4/T6.
– des écoles (élémentaires publiques/privées et collège).
– des axes routiers.
Bien soumis au régime de la copropriété dans un immeuble composé de 42 lots principaux qui ne fait pas l’objet d’une procédure en cours.
Quote-part annuelle de charges : 1416 euros incluant les charges de copropriété, d’ascenseur et d’entretien de la chaudière.
Performance énergétique et climatique : DPE classé B en énergie primaire et A en énergie finale et GES classé C.
Montant estimé des dépenses annuelles d’énergie pour un usage standard : entre 740 euros et 1070 euros par an. Prix moyens des énergies indexés sur les années 2021 à 2023 (abonnements compris).
Les informations sur les risques auxquels ce bien est exposé sont disponibles sur le site Géorisques (C. envir., art. R. 125-25, I).
Honoraires à la charge du vendeur.
Pour plus d’informations, photos et plans, prenez contact avec notre consultante Alyssa Niculescu, agent commercial, immatriculée au RSAC de Lyon sous le numéro 794 964 957.
Copropriété de 42 lots.
Charges annuelles : 1416 euros.





















